In questo particolare momento, avendone le possibilità, potremmo fare come il maestro Le Corbusier, che nel 1951 decise di costruirsi un capanno di soli 14 metri quadri (quanto la cabina di un treno) sulle scogliere di Roquebrune-Cap Martin in costa Azzurra e là stabilire il suo rifugio spirituale estivo.
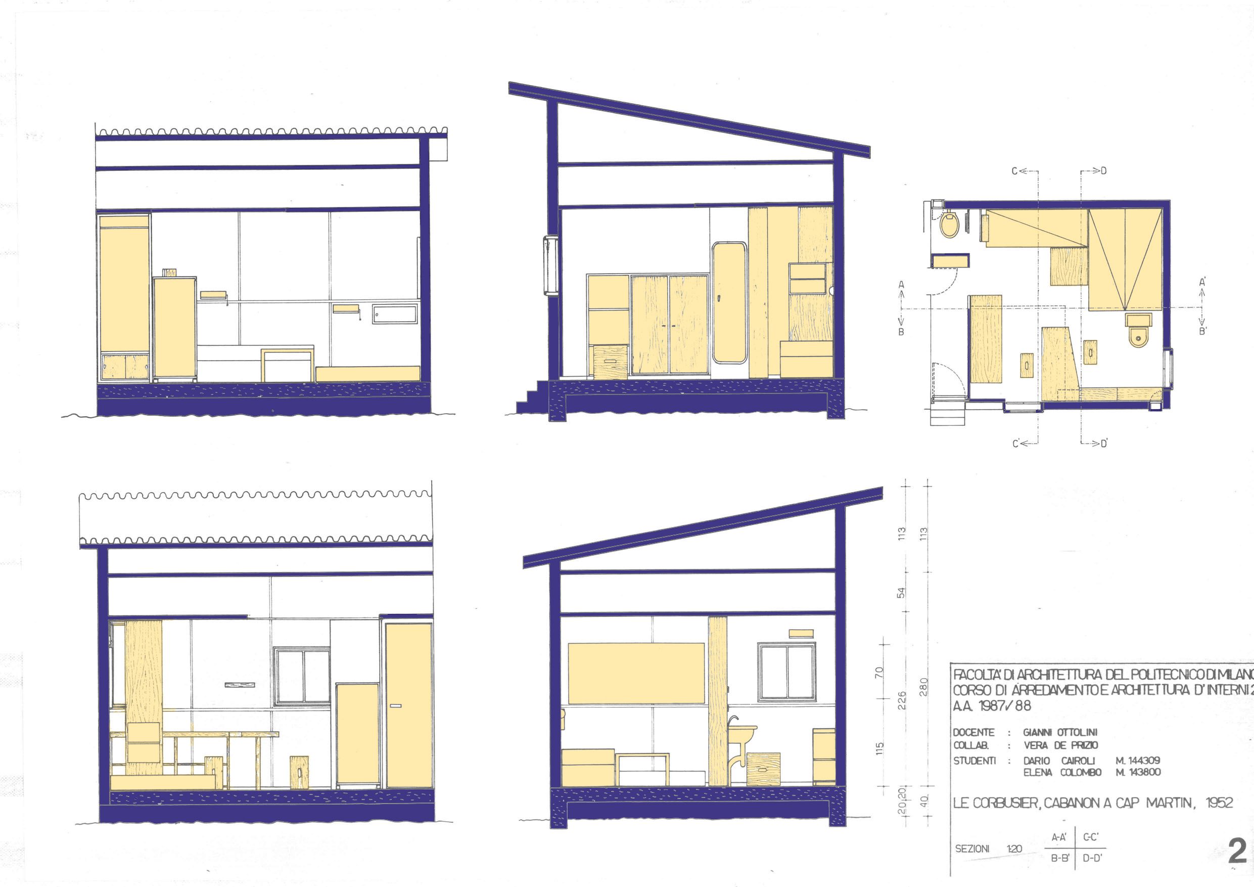
Nacque così “Le Cabanon” (il capanno), una costruzione a pianta quadrata di 3,36 metri di lato e 2,26 di altezza, concepita secondo i principi essenziali e antropocentrici del “Modulor”.
D’altronde, come diceva lo stesso Le Corbusier, «ad un uomo nudo in vacanza non serve molto più di un letto, servizi, un tetto e la vista del sole che risplende sul mare».
Le cronache raccontano che l’architetto disegnò “Le Cabanon” in tre quarti d’ora sull’angolo di un tavolo di una trattoria a Cap Martin, come regalo di compleanno alla moglie Yvonne.
Ma la protagonista di questa storia è un’altra donna: Elieen Gray.
Elieen, architetto e designer irlandese, con il compagno, l’architetto rumeno Jean Badovici, dal 1924 realizzò a Cap Martin la villa E-1027 dove Le Corbusier fu spesso ospite e che già conteneva i cinque principi dell’architettura (pilotis, pianta e facciata libera, tetto giardino, finestra a nastro) enunciati in “Vers une architecture” ed applicati poi a Villa Savoye (1928-31).
Le Corbusier manifestò un interessamento morboso a Elieen e fu lo stesso Badovici a donargli il terreno dove costruì “Le Cabanon” dal quale non la perdeva di vista.
Dopo la separazione tra la Gray e Badovici, approfittandone dell’assenza, Le Corbusier dipinse le pareti bianche della E-1027 con otto murales a sfondo erotico. Facendosi fotografare nudo mentre era all’opera.
Fu per gelosia o per vendetta? Un atto discriminatorio per denunciare la bisessualità di Elieen o uno sfregio a quel capolavoro?
Per lei fu un affronto (non vi tornò mai più) ma Badovici, proprietario della villa, si guardò bene dal cancellare quelle pitture. Che oggi, unitamente alla villa, alle cinque “Unità da campeggio” (costruite successivamente) e al “Le Cabanon” richiamano turisti da ogni dove.
Le Corbusier continuò a frequentare Cap Martin. Nelle acque dinanzi al suo rifugio, durante un bagno, morì di infarto nel 1965.
Isolato dal virus dell’amore.
(Christian De Iuliis – Tw: @chrideiuliis – Web: christiandeiuliis.it)
Il sito ufficiale: https://capmoderne.com/en/
Video su “Le Cabanon” – https://www.youtube.com/watch?v=nsMnrtITci0
Dalla tormentata vicenda tra Gray e Le Corbusier è stato tratto un film (non uscito in Italia) “The price of desire” – Qui il trailer: www.youtube.com/watch?v=xDWjvPXz8MA&list=PLBlHna2j0xWvMDbph_xCu201jX3v_uilI&index=1
Le foto di casa E-1027 pubblicate da “Living”: https://living.corriere.it/case/autore/gallery/villa-1027-di-eileen-gray-50432730216/?i=11






